THIẾT KẾ KIẾN TRÚC NỘI THẤT VÀ THI CÔNG TOÀN PHẦN NHÀ PHỐ QUẬN 7
Chủ đầu tư: Anh Tuấn
Địa điểm : Đường số 3 – khu Himlam Quận 7, TPHCM.
Qui mô : Diện tích xây dựng 10m x 18m. Qui mô 1 hầm, 1 trệt và 3 lầu.
Phong cách: Thiết kế theo phong cách tân cổ điển
Thời gian hoàn thành 1/1/2020
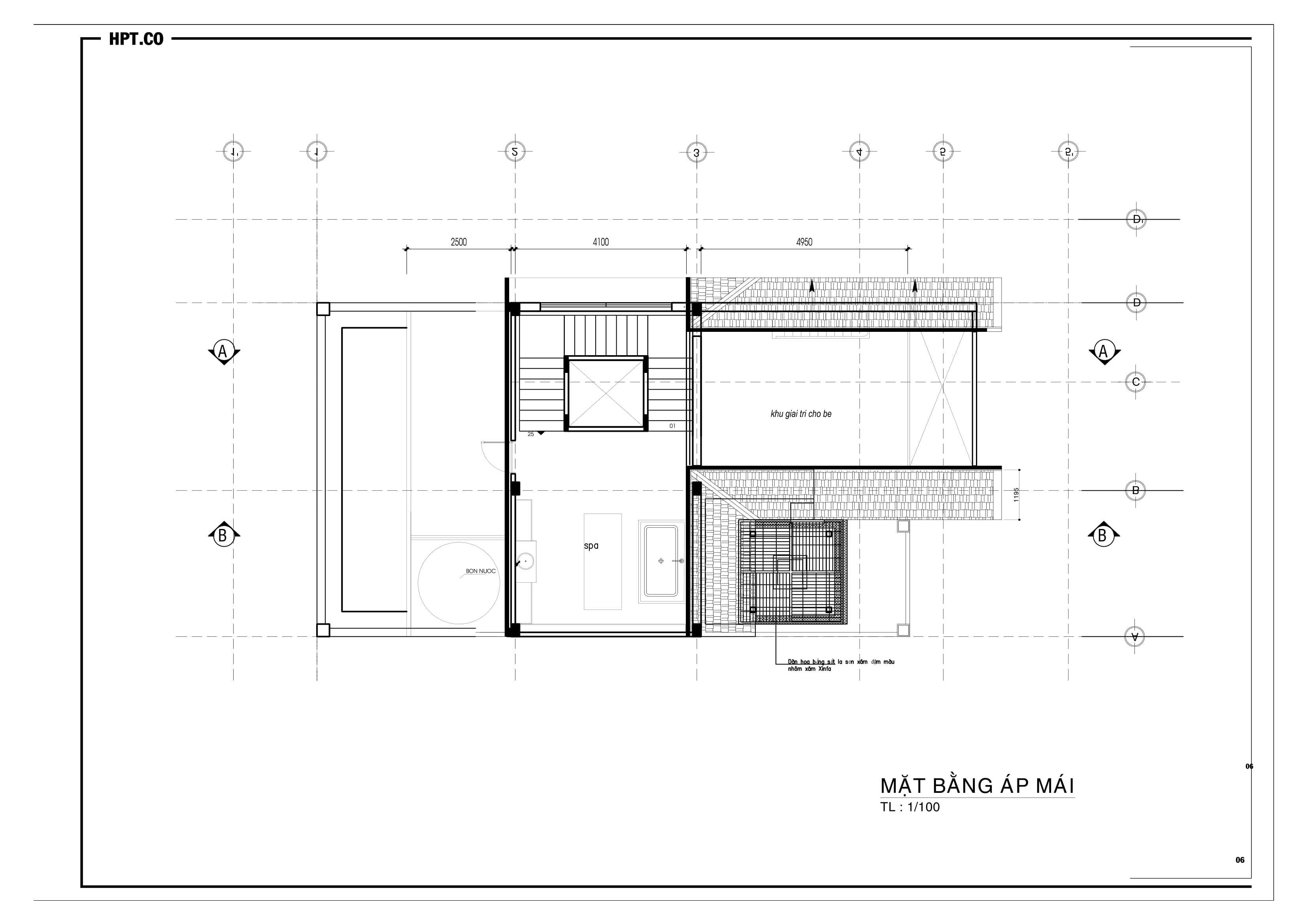
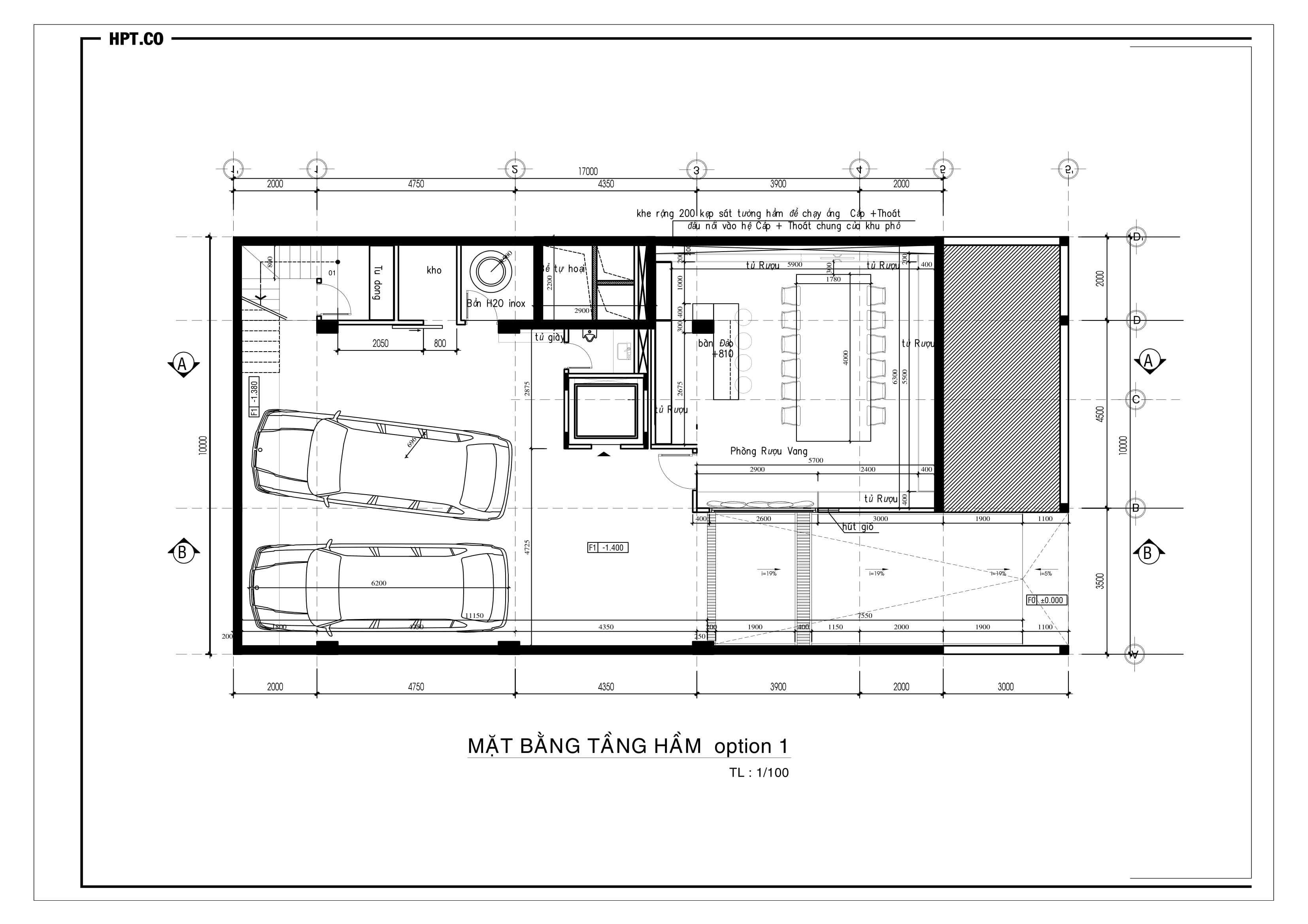
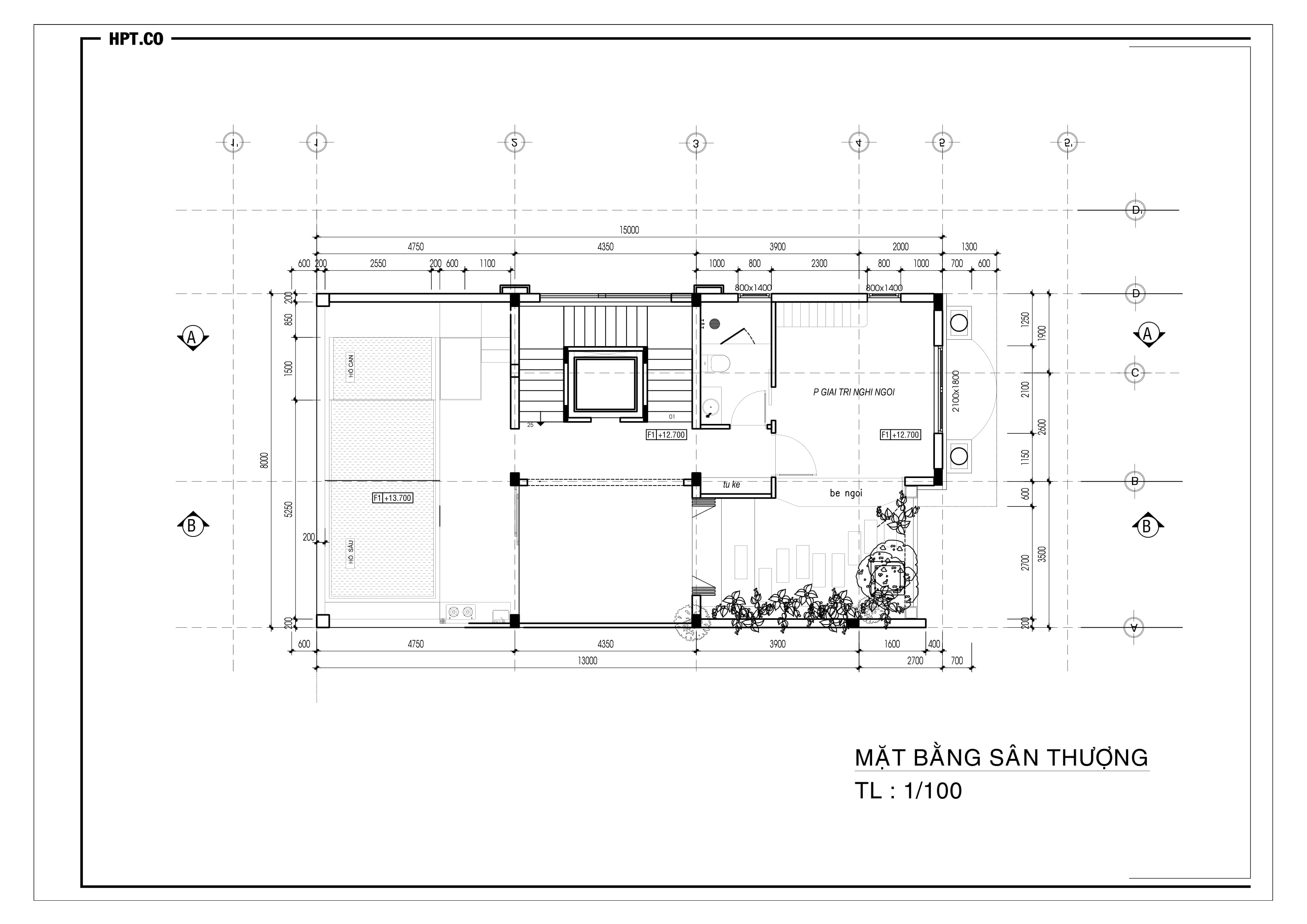
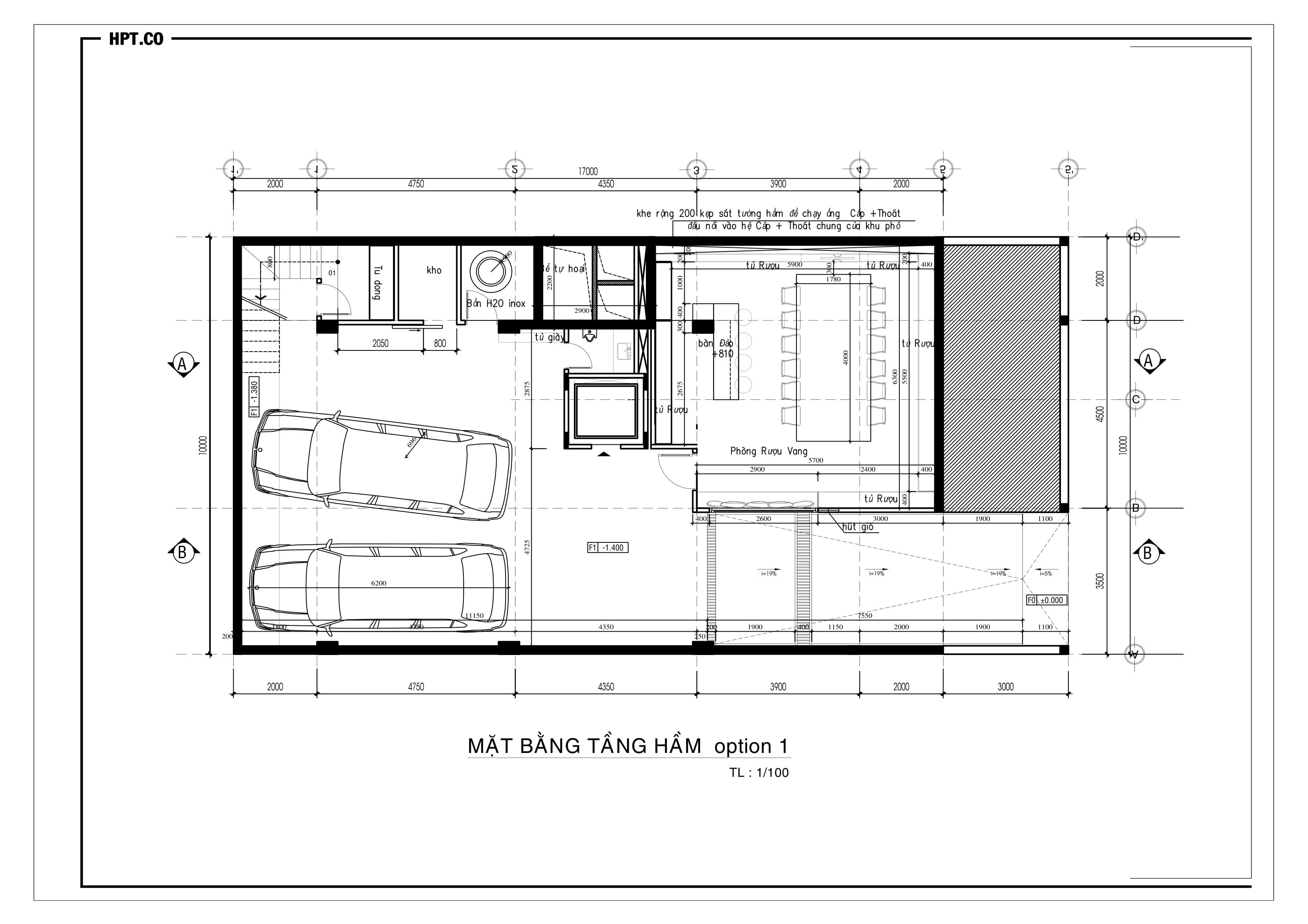
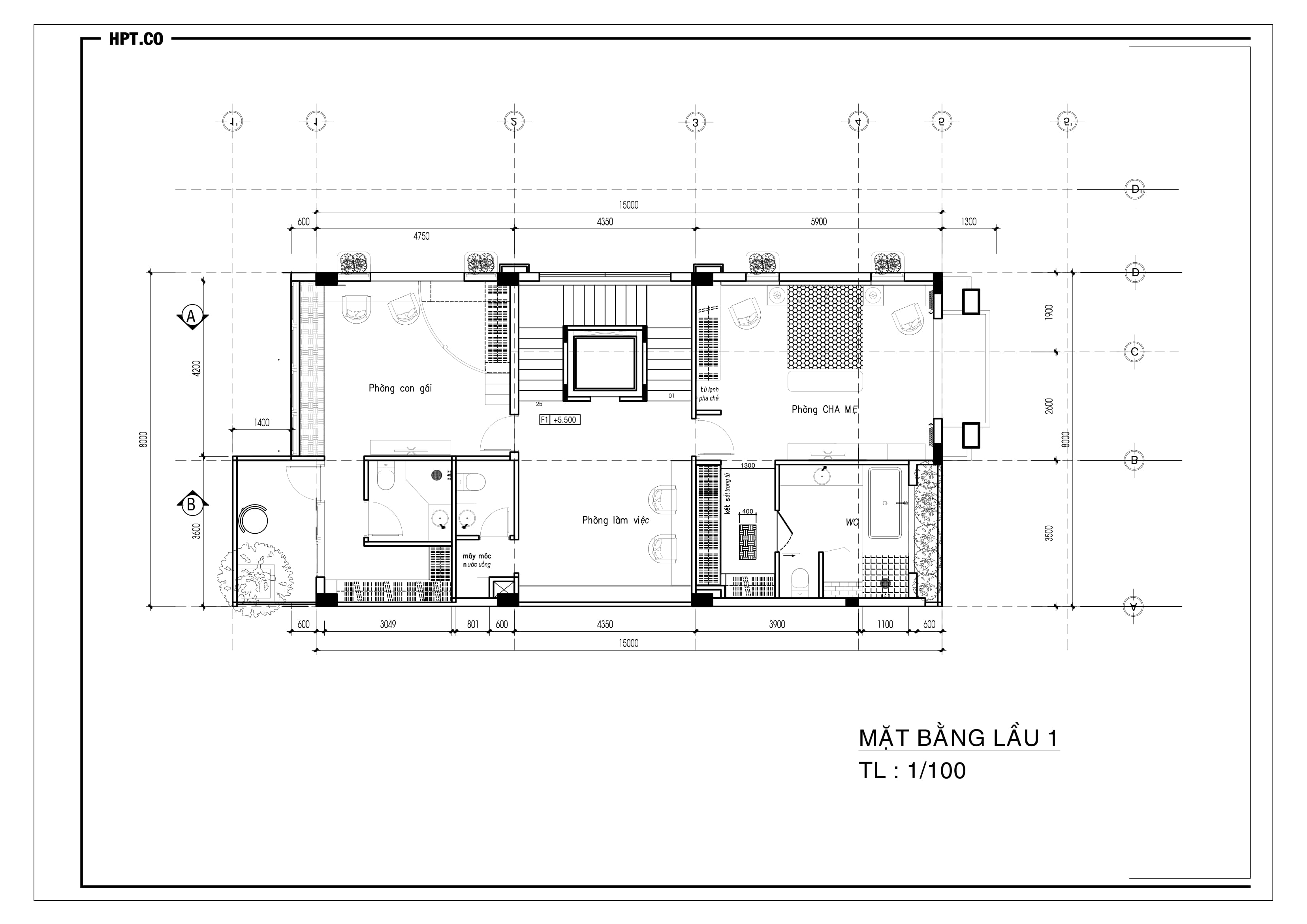
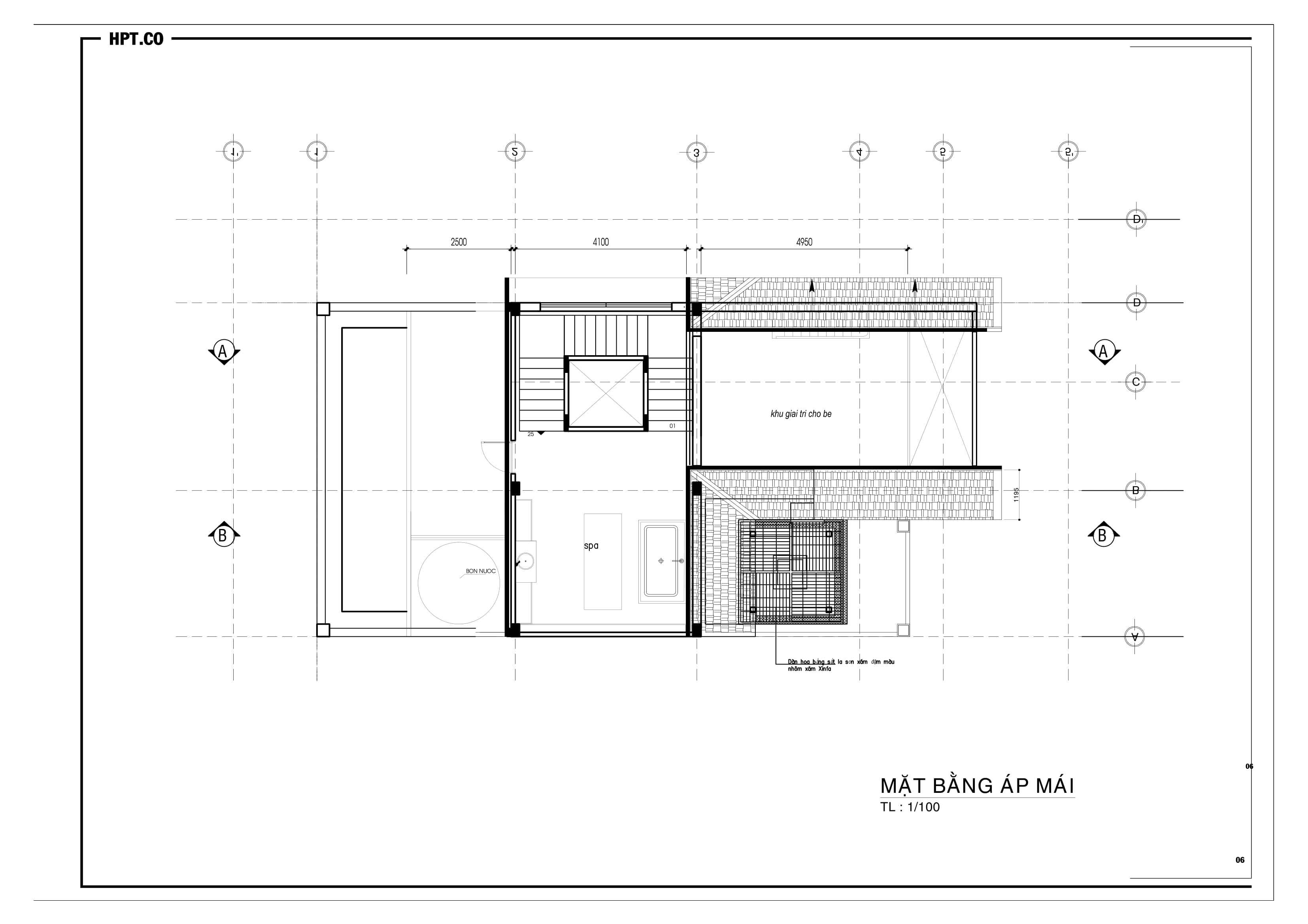
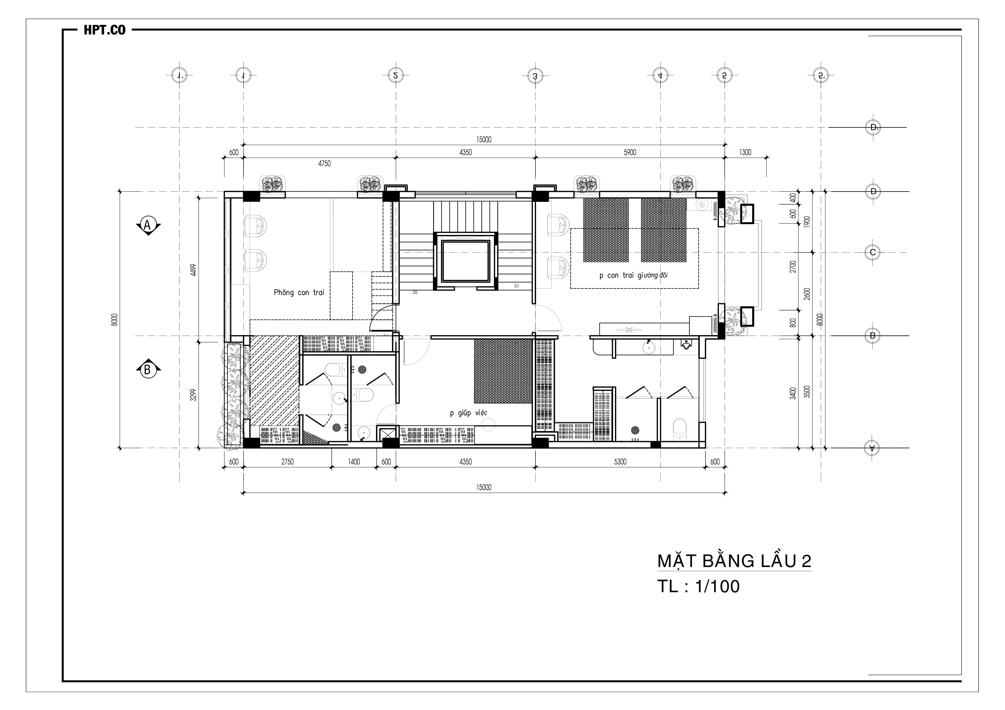
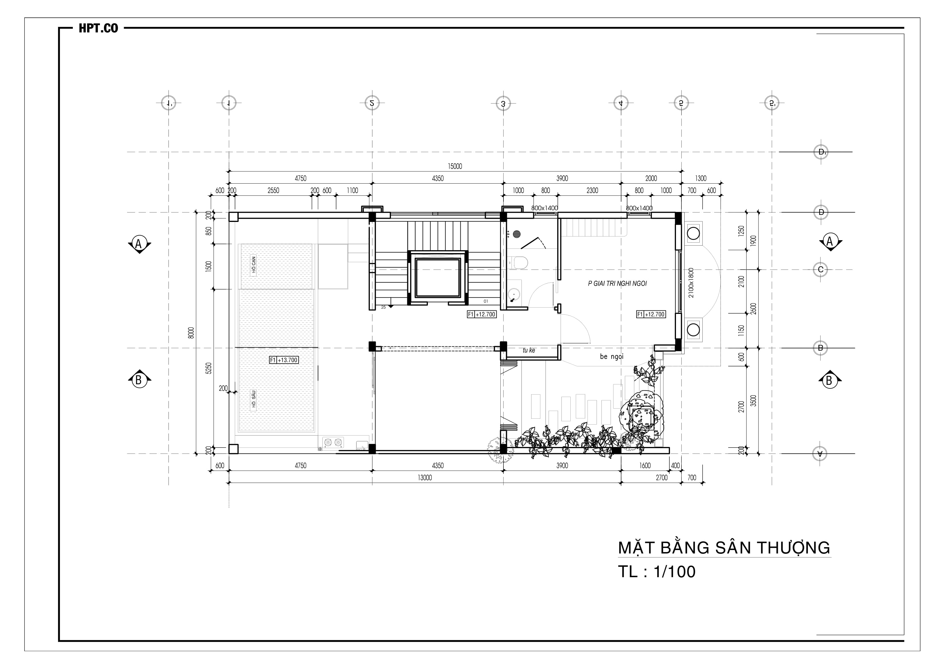
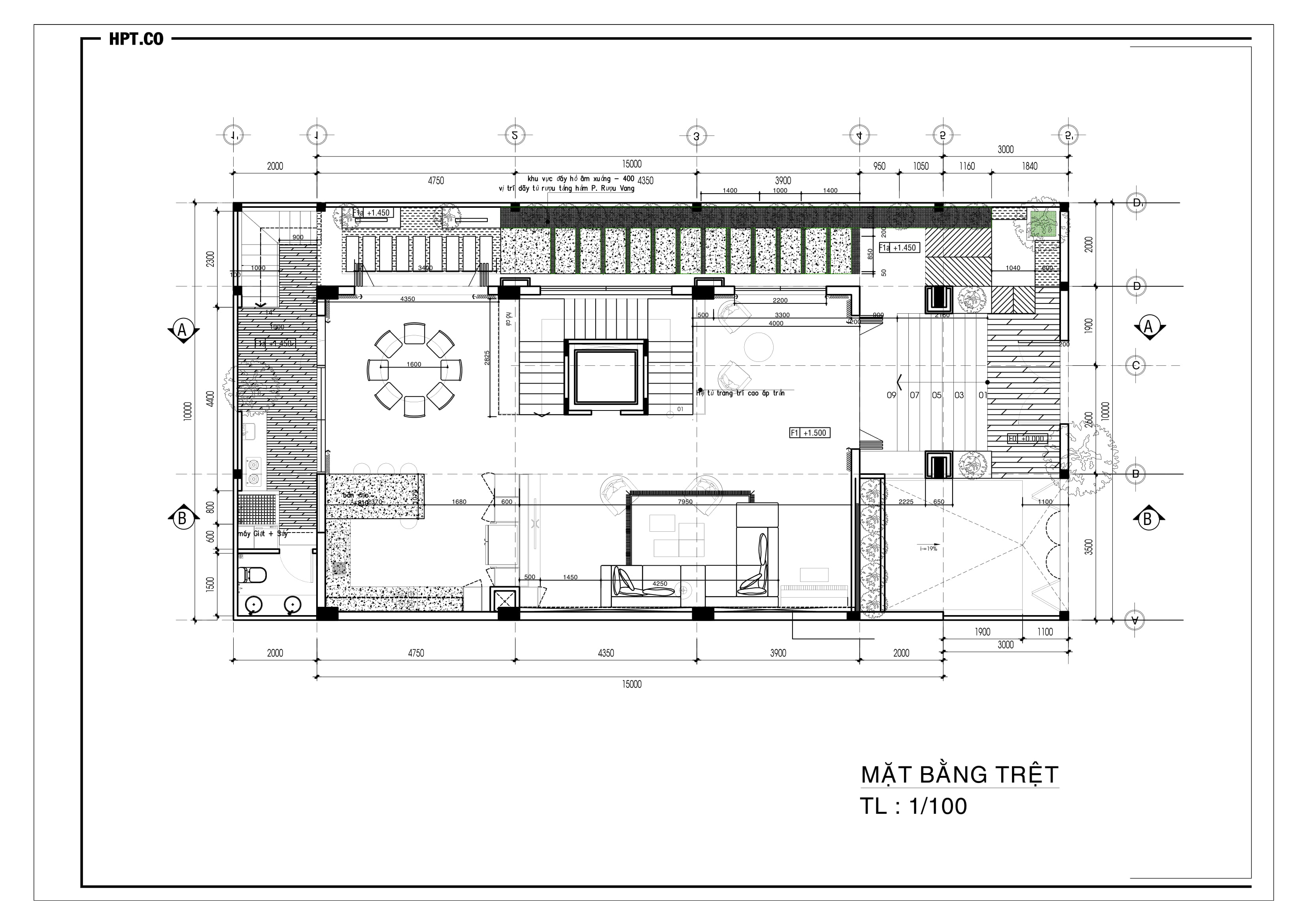
MẶT BẰNG BỐ TRÍ KIẾN TRÚC
KHÔNG GIAN NỘI THẤT TẦNG HẦM



KHÔNG GIAN NỘI THẤT KHÁCH BẾP TẦNG TRỆT





KHÔNG GIAN NỘI THẤT PHÒNG NGŨ











KHU SÂN THƯỢNG HỒ BƠI – KHU VUI CHƠI CỦA BÉ






THIẾT KẾ TOILET CÁC TẦNG





—CONTINUE UPDATING. THANKS!
Thiết kế nội thất nhà đẹp – Homedesign360 Thiết kế chung cư – Thiết kế biệt thự – Thiết kế nhà phố







